T/S THORSHAMMER (III)

Tilbake til søk
THORSHAMMER (III)
Nasjonalitet
Norge
Skipstype Tankskip
Off nr 6921804
Klassifisering DnV +1A1, Tankskip for oljelast, F, E0, +MV, +KV
Kallesignal LJYC
Byggeår 1969
Leveringsmåned Desember
Byggenr 226
Bruttotonn/BT 113.656
Nettotonn/NT 90.541
Dødvekt/TDW 228.250
Skrog LOA 324,97 m
Skrog LBP 310,89 m
Bredde 48,10 m
Dypgående 20,44 m
Dybde (i riss) 26,47 m
Skipsbeskrivelse Beskrivelse ikke registert
Skipsfunksjon/bruk Fartøy for frakt av råolje (VLCC)
Hastighet 16,5
Drivstoffkapasitet 152 t/d
Lasthåndtering 4 x lossepumper, vertikale, turbindrevet, type Eureka/AEG Kanis, hver kapasitet 5.000 kub.m. 1 x ballastpumpe, vertikal, turbindrevet, type Eureka/AEG Kanis 1 x strippe/tankspylepumpe, turbindrevet, type Eureka/AEG Kanis. 1 x nøytralgass anlegg, type
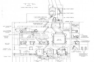
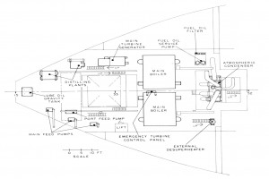
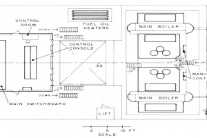
Kjeletype 2 x hovedamp kjeler (vannrørskjeler/water tube), Combustion Engineering (CE) type V2M8. Toppfyrt m/3 Wallsend-Hamworthy steam assist. brennere i hver, samt en Ljungstrøm roterende luftforvarmer
Kjelebygger Svenska Maskinverken AB, Sverige, Sverige
Hjelpemaskineri Turbo gen (AEG-Kanis) + Dieselgen (B&W-Skandia)
El-kraft 4.045kW/440-220VAC/60Hz
Navigasjonsutstyr Gyrokompass m/auto-pilot, radar og repeater. Radarer av type Reytheon. Den ene av type TM/CPA. Peileapparat (decca) elektrisk log og ekkolodd.
Manøvreringssystem 1 x styremaskin, Elektro-hydraulisk ram type. Bygget av Hastie, Greenock, Skottland
Kommunikasjonsutstyr Trådløst telefoni/telegrafi
Maskin-/motortype 1 x Dampturbin
Maskin-/motorytelse
Maskin-/motordetaljer Dampturbin, General Electric MST-14, 32.400 AHK v/85 o/min., Stal-Laval dampkondensator
Maskin-/motorbygger A/S Kværner Brug, Oslo
Informasjon om rederi, rederiselskap og verft
Rederi
Fra - Til
1969 - 1983
Norge
Sted Uddevalla
Reg havn Sandefjord

1967 I september ble kontrakten mellom A/S Thor Dahl og Uddevallavarvet AB undertegnet. Bygging av den første 230.000 tonneren ut fra Uddevallavarvet «Sørvikvarvet» En direkte konsekvens av Suez krigen i juni 1967 som gjorde at tankflåten måtte gå rundt Afrika for å bringe olje til Europa og Amerika. Beddingen på verkstedet måtte bygges ut fra 130.000 tonn størrelsen til 230.000 for å greie oppgaven.
1969 Bygget som turbintanker THORSHAMMER av Uddevallavarvet A/B, Uddevalla, på bedding 4 ved Sørviksvarvet, for I/S Thorshammer (A/S Thor Dahl), Sandefjord. Kjølstrekning 08/11-1968 klokken 14.00, like etter at motortanker BONNY på 95.000 tdw var sjøsatt fra samme beddingen ble kjølen på det største beddingbyggede skip til da lagt. Sjøsatt 26/06-1969. Fru Ingrid Christensen, enken etter Lars Christensen og datter av Thor Dahl, var gudmor.
THORSHAMMER var den første i en serie på 10 tankere i denne klassen fra dette verkstedet. Da skipet ble levert i desember 1969 var det det største fartøy som var bygget i Skandinavia, og det største som var bygget på bedding og ikke i byggedokk. Dette var rederiets tredje skip med dette navnet.
THORSHAMMER ble overtatt av rederiet i Lisboa 20/12 etter prøveturen en prøvetur som startet fra Uddevalla 06/12. Etter prøveturen ble det under dokking påsatt av finner for å bringe vann til propellen grunnet høy kavitasjon. Fartøyet var ikke utstyrt med slingrekjøler noe som gjorde at hun alltid slingret. Uansett vær.
Skipets skipsledelse ved avgang var kaptein Arthur Abrahamsen, maskinsjef Bjørn Ilestad, overstyrmann Hans Tveitan og stuert Kåre Sulesund. Kaptein Arne H. Sørensen hadde vært rederiets representant under byggetilsynet.
THORSHAMMER var det første turbin drevede fartøy som fikk DnV’s klassebetegnelse E0. E0 klassens krav var en prøvetid på minimum tre måneder (DnV krav). Skipet var aldri tilgjengelig for den endelige test før i april 1971, da hun ble godkjent og fikk tilleggsbetegnelsen E0. Navigasjonsutyret var moderne. Gyrokompass tilknyttet auto-pilot, radar og repeater. Nytt i denne sammenhengen var gyrokompasset var utstyrt med rategyro, et instrument som viser hastigheten av en endring i kurs, og forteller dermed på forhånd hvilken kursendring som kan forventes. Radarer av type Reytheon. Den ene av type TM/CPA. Med dette utstyret var plotting for bestemmelse av kollisjonsrisk vesentlig forenklet. Ellers, peileapparat (decca) elektrisk log og ekkolodd
1970 THORSHAMMER anløper Shellhaven i Themsen 23/10-1970. Dette var til da det største skip som hadde gått opp Themsen. Skipet satte også en annen ny rekord da det losset 15.000 tonn pr.time, hvilket var rekord ved anlegget.
1975 Fyrbøter Kurt Vesterøy omkom under elektrisk sveising i maskinrommet da skipet var på vei fra Kharg Island til Finnart i Skottland. Gikk på verksted i Hamburg.
1977 Gikk i opplag ved Thorøya i Sandefjord 8 august.
1979 Gikk fra opplag på Thorøya i Sandefjord 23/05-1979 for atter en gang å prøve lykken.
1981 Ankom i april Thorøya i Sandefjord for opplag
1982 Senhøstes ble det besluttet å la THORSHAMMER gå til opphugging. 28/11-82 startet hun sin siste reis, til Singapore for siste gang, for tankcleaning. Solgt til kinesiske huggere for USD 2,5 mill
1983 Ankomst Busan, Taiwan , 11/2-83 hvor den norske besetningen overleverte skipet for opphugging

Fremdrift: 1 x turbinanlegg, General Electric dampturbin type MST-14, 32.400 AHK ved 85 o/min. Kondensatoren av type Stal-Laval two-pass, pumpe sirkulert
1 x 5-bladet, diameter: 8.800 mm, pitch: 6.495 mm

1967 In September, the contract between A/S Thor Dahl and Uddevallavarvet AB was signed. Construction of the first 230,000 tonne from the Uddevallavarvet "Sørvikvarvet" A direct consequence of the Suez war in June 1967 which caused the tanker fleet to go around Africa to bring oil to Europe and America. The berth at the shipyard had to be expanded from 130,000 tonnes in size to 230,000 in order to do the job.
1969 Built as steam ship THORSHAMMER by Uddevallavarvet A/B, Uddevalla, on the berth 4 at Sörviksvarvet, for I/S Thorshammer (A/S Thor Dahl), Sandefjord.
Keel laid on 08/11-1968 at 14.00 hrs, half an hour after the motor tanker BONNY on 95.000 tdw was launched from the same berth, was until then the first keel plate of the biggest berth built ship laid. She was launched and namegiven on 26/06-1969. Mrs. Ingrid Christensen, the widow of former owner Lars Christensen, the daughter of Thor Dahl, was the sponsor.
THORSHAMMER was the first of a serial of ten by the yard. At delivery in December 1969 she was the biggest ever built in Scandinavia, and the biggest ever built on berth, not in dock.
THORSHAMMER was taken over by the shipping company in Lisbon on 20/12 after the sea trail, a test trip that started from Uddevalla 06/12. After the test run, fins were fitted during docking to bring water to the propeller due to high cavitation. The vessel was not equipped with a meandering cooler, which meant that she always meandered. Whatever the weather.
The ship's ship command at departure was Captain Arthur Abrahamsen, chief engineer Bjørn Ilestad, chief offiser Hans Tveitan and steward Kåre Sulesund. Captain Arne H. Sørensen had been the shipping company's representative during the construction.
THORSHAMMER was the first turbine driven ship holding the DnV’s class notation E0. E0-class demand was a test periode of minimum three months (DnV). The ship was never available for the final test before April 1971. She was then noted as a E0-classed ship.
1970 THORSHAMMER arrived Shellhaven in the river Thames 23/10-1970. At that time the biggest ship entring the river. The ship also set a new record as she discharged 15.000 tons an hour, which also was a new record for the oil installation on shore.
1977 Went to Sandefjord for lay-up at Thorøya, Sandefjord. Arrived on 08/08-1977.
1979 Left the lay-up mode in Sandefjord the 23/5-1979 for a new chance to make money.
1981 Arrived for the second time Thorøya, Sandefjord in April for lay-up.
1982 At the autumn a decision was taken og selling the THORSHAMMER to breaking. The 28/11-82 she started her last voyage bound for Singapore for tankcleaning. Sold to chinese breakers for USD 2,5 mill
1983 Arrived Busan, Taiwan the 11/2-83 where the norwegian crew handed over the ship to the breakers.

  • THORSHAMMER

    THORSHAMMER
  • THORSHAMMER

    THORSHAMMER
  • THORSHAMMER

    THORSHAMMER
  • THORSHAMMER

    THORSHAMMER
  • THORSHAMMER

    THORSHAMMER
  • THORSHAMMER

    THORSHAMMER
  • THORSHAMMER

    THORSHAMMER
  • THORSHAMMER

    THORSHAMMER
  • THORSHAMMER

    THORSHAMMER
  • THORSHAMMER

    THORSHAMMER
  • THORSHAMMER

    THORSHAMMER
  • THORSHAMMER

    THORSHAMMER
  • THORSHAMMER

    THORSHAMMER
  • THORSHAMMER

    THORSHAMMER
  • THORSHAMMER

    THORSHAMMER
  • THORSHAMMER

    THORSHAMMER
  • THORSHAMMER

    THORSHAMMER
  • THORSHAMMER

    THORSHAMMER
  • THORSHAMMER

    THORSHAMMER
  • THORSHAMMER

    THORSHAMMER
  • THORSHAMMER

    THORSHAMMER
  • THORSHAMMER

    THORSHAMMER
  • THORSHAMMER

    THORSHAMMER
Kaptein Arthur Abrahamsen
Overstyrmann Hans Tveitan
1. styrmann Edgar Evensen
1. styrmann Kristian Storm Larsen
maskinsjef Bjørn Ihlestad
1. maskinist Reidar Rygh
2. maskinist Kristian Haugan
radiooffiser Ingar Paulsen
stuert .Kåre Sulesund
Kilde: Narve Sørensen/Thor-Glimt/Torstein Eliassen, boken "De norske Uddevallaskipene" av Dag Bakka jr.
Utarbeidet av: Samlet og bearbeidet av Ragnar Iversen
   
https://www.sandefjordshistorie.no